 
        
      
    Fortis Construction HQ
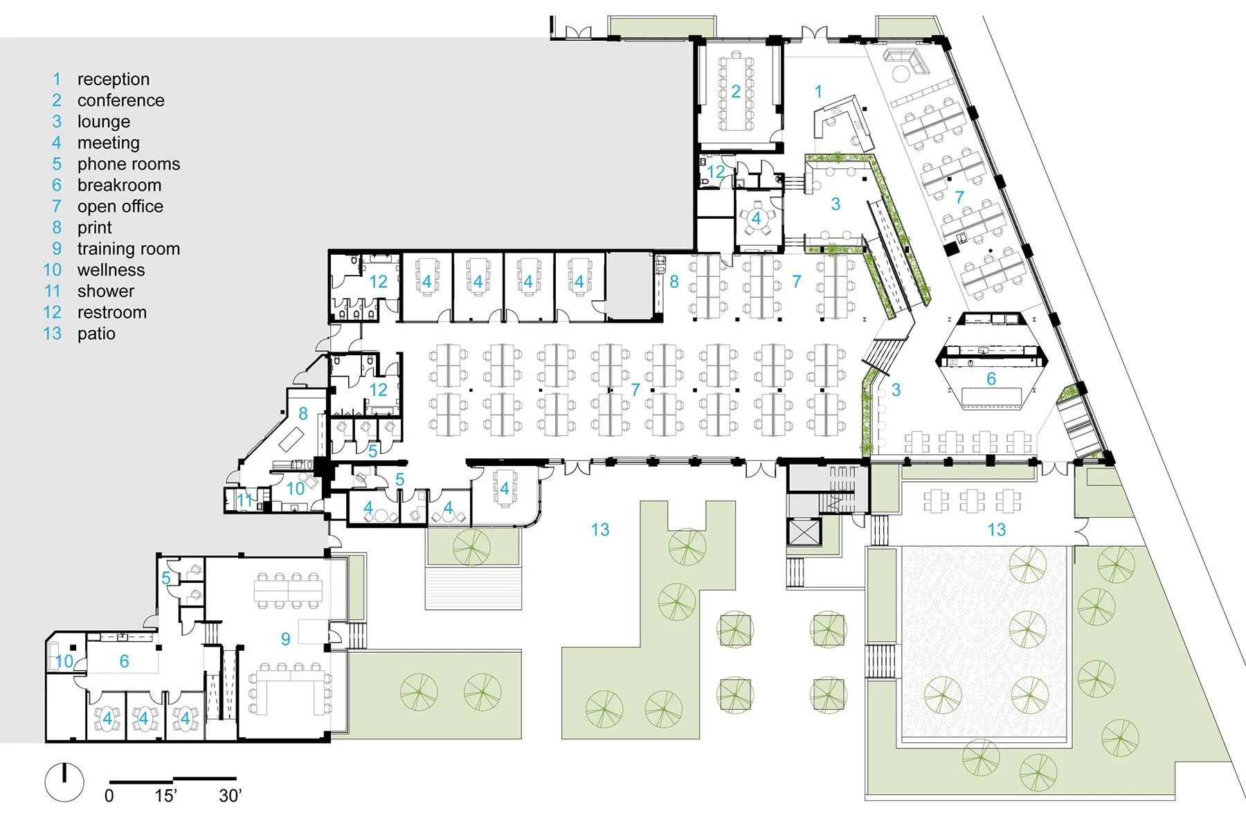
Located in South Portland on the first floor of the historic Water Tower Building, the new Fortis Construction Portland Headquarters was inspired by a vision to strengthen collaboration and to support and celebrate Fortis’s culture, values and identity.
Photography: Stephen Miller
Collaborators: Woofter Bolch Architecture
KPFF Structural
LUMA Lighting Design
Acoustic Design Studio
Hyphn
Fortis Construction
 
             
             
             
             
             
             
             
             
             
             
             
             
             
            